Augsburg
Verkaufsfläche
648 m² m²
Miete/m²
auf Anfrage €
Objekt
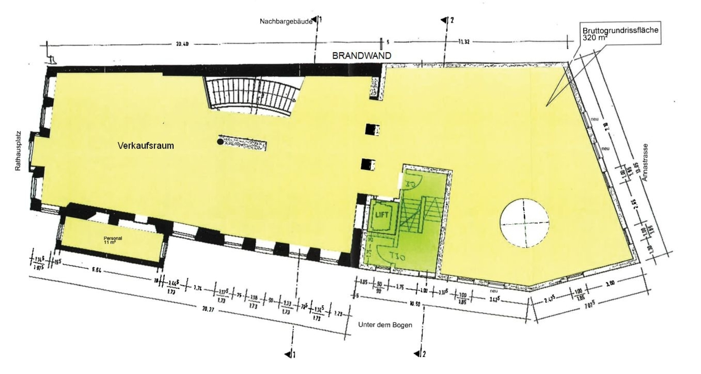
Die modern gestalteten Einzelhandelsfläche befindet sich im Erdgeschoss und 1. Obergeschoss. Die Schaufenster erstrecken sich über die gesamte Gebäudebreite hin zum Rathausplatz. Das EG und OG sind über eine interne Treppe miteinander verbunden.

Lage
Sehr zentrale Lage mitten in der Augsburger Innenstadt gegenüber dem Rathaus.
Ihr Ansprechpartner

Detail-Informationen
Objektart | EG, 1.OG und UG |
beziehbar ab | Spätsommer 2022 |
Parkplätze | |
Provision | Provisionsfrei für den Mieter |